Стоимость строительства:
от 11 184 726 ₽
Параметры проекта:
Площадь:
330 м2
Размеры:
22 x 19 м
Этажей:
2
Состав дома:
Комнат:
4
Санузлов:
5
Гараж:
0
8 посетителей смотрят этот проект прямо сейчас!
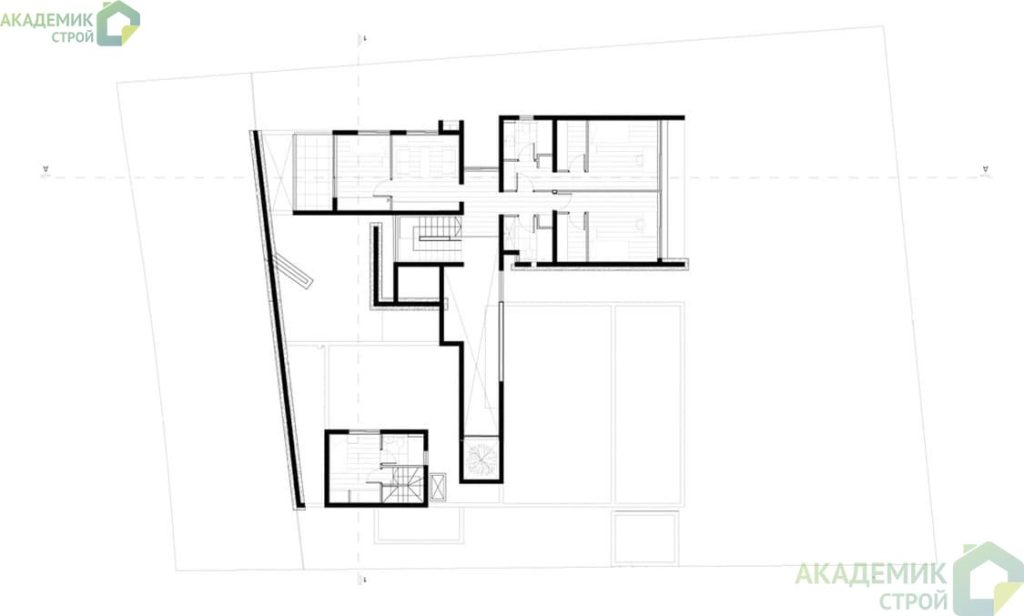
Планировка

Маргарита Алексеева
Архитектор
Проконсультирую по проекту Дом id-104014
Размеры дома: 22 x 19 м
Площадь м²: 330
Бюджет: большой
Цена, руб.: от 6 до 7 млн. руб.
Стиль: минимализм, хай тек
Этаж: двухэтажные
Форма: квадратный
Гараж: 0
Глубина: 19
Количество санузлов: 5+
Количество спален: 4
Назначение: для постоянного проживания
Опции: панорамные окна, терраса
Ширина: 22
Тип крыши: плоская
Площадь м²: 330
Бюджет: большой
Цена, руб.: от 6 до 7 млн. руб.
Стиль: минимализм, хай тек
Этаж: двухэтажные
Форма: квадратный
Гараж: 0
Глубина: 19
Количество санузлов: 5+
Количество спален: 4
Назначение: для постоянного проживания
Опции: панорамные окна, терраса
Ширина: 22
Тип крыши: плоская
Артикул: ccee05e26a3f Категории: Дома из арболита, Каменные дома, Дома из блоков, Каменные дома, Дома из бруса, Деревянные дома, Дома из газобетона, Каменные дома, Дома из керамзитобетонных блоков, Каменные дома, Дома из кирпича, Каменные дома, Дома из клееного бруса, Деревянные дома, Дома из монолита, Каменные дома, Дома из пеноблоков, Каменные дома, Дома из профилированного бруса, Быстровозводимые дома, Дома из СИП панелей, Быстровозводимые дома, Дома из теплоблоков, Каменные дома, Дома из теплой керамики, Каменные дома, Дома из шлакоблока, Деревянные дома, Каменные дома, Каркасно щитовые дома, Каркасные дома, Быстровозводимые дома Теги: двухэтажные, панорамные окна, терраса
Посмотрите доступные комплектации дома

Проектирование
- Эскизное решение
- Архитектурный проект
- Конструктивный проект

Фундамент дома
- Геодезические работы. Разбивка осей и диагоналей дома с привязкой к границам участка.
- Выемка грунта. Бурение свай диаметром 300мм. Устройство свай (Арматура 8 AIII, Арматура 12 AIII, Бетон БСТ В22,5 (М300) F200 W8). Или устройство забивных свай.
- Отсыпка песка (песок технологический). Щебёночная подготовка (щебень фракции 20-40).
- Армирование фундамента (Арматура 8 AIII, Арматура 14 AIII).
- Бетонирование Фундамента (Бетон БСТ В22,5 (М300) F200 W8).
- Монтаж опалубки (доска обрезная 150х50).
- Гидроизоляция фундамента.
- Устройство вентиляционных каналов.
- Монтаж закладных гильз для ввода инженерных коммуникаций (вода, канализация, электричество).

Стены и перегородки дома
- Наружные несущие стены выполнены: из газобетонных блоков, пеноблоков, керамзитоблоков, керамических блоков, кирпича.
- Внутренние несущие стены выполнены: из газобетонных блоков, пеноблоков, керамзитоблоков, керамических блоков, кирпича.
- Кирпичная кладка полнотелого кирпича над фундаментом.
- Монолитный пояс, Арматура 8 AIII, Арматура 12 AIII, Бетон БСТ В22,5 (М300) F200 W8).
- Бетонирование монолитных участков.
- Кладка перегородок.
- Кирпичная кладка полнотелого кирпича опирания перемычек. Монтаж перемычек над оконными и дверными проемами.

Перекрытия
- Плиты перекрытия цоколь, 1-ый этаж (чердачное перекрытие по деревянным балкам).
- Балки перекрытия обрабатываются антисептиком.

Лестница
- Устанавливается временная межэтажная лестница из хвойных пород дерева.

Кровельная система
- Усиленная стропильная система из обрезной доски.
- Контробрешетка. Обрешетка.
- Кровля – гибкая черепица «Технониколь» или металлочерепица («Дельта», «Дёркен», «Вилпе» и др.). Цвет — в ассортименте.
- Гидроизоляция кровли.
- Устройство кровельных вентиляционных выходов, с монтажом вентиляционного короба из санузла, кухни и котельной.

Терраса дома (при наличии)
- Монолитный ростверк с послойно утрамбованной песчаной подушкой с устройством железобетонных свай.
- Силовой каркас.
- Кровля террасы – гибкая черепица «Технониколь» или металлочерепица («Дельта», «Дёркен», «Вилпе»). Цвет — в ассортименте. * Стоимость террасы не входит в стандартную комплектацию и рассчитывается отдельно.

Балкон дома (при наличии)
- Силовой каркас, лаги пола, покрытие пола.
- * Стоимость балкона не входит в стандартную комплектацию и рассчитывается отдельно.

Сопровождение строительства
- Доставка материалов;
- Проживание рабочих;
- Организация труда;
- Организация биотуалета;
- Все расходные материалы;
- Строительно-монтажные работы;
- Складские расходы;
- Контроль над выполнением работ;
- Фото и видео отчеты о строительстве объекта;
- Авторский надзор архитектора;
- Шестиуровневый контроль специалистами Технадзора, службы контроля качества;
- Вывоз мусора.

Проектирование
- Эскизное решение
- Архитектурный проект
- Конструктивный проект

Фундамент дома
- Геодезические работы. Разбивка осей и диагоналей дома с привязкой к границам участка.
- Выемка грунта. Бурение свай диаметром 300мм. Устройство свай (Арматура 8 AIII, Арматура 12 AIII, Бетон БСТ В22,5 (М300) F200 W8). Или устройство забивных свай.
- Отсыпка песка (песок технологический). Щебёночная подготовка (щебень фракции 20-40).
- Армирование фундамента (Арматура 8 AIII, Арматура 14 AIII).
- Бетонирование Фундамента (Бетон БСТ В22,5 (М300) F200 W8).
- Монтаж опалубки (доска обрезная 150х50).
- Гидроизоляция фундамента.
- Утепление фундамента.
- Устройство вентиляционных каналов.
- Монтаж закладных гильз для ввода инженерных коммуникаций (вода, канализация, электричество).

Стены и перегородки дома
- Наружные несущие стены выполнены: из газобетонных блоков, пеноблоков, керамзитоблоков, керамических блоков, кирпича.
- Внутренние несущие стены выполнены: из газобетонных блоков, пеноблоков, керамзитоблоков, керамических блоков, кирпича.
- Кирпичная кладка полнотелого кирпича над фундаментом. Утепление 100 мм ( 2 слоя по 50 мм).
- Облицовка фасада керамическим облицовочным кирпичом (может быть выполнена фасадной штукатуркой или другими облицовочными материалами).
- Монолитный пояс, Арматура 8 AIII, Арматура 12 AIII, Бетон БСТ В22,5 (М300) F200 W8).
- Бетонирование монолитных участков.
- Кладка перегородок.
- Кирпичная кладка полнотелого кирпича опирания перемычек. Монтаж перемычек над оконными и дверными проемами.
- Устройство межэтажных монолитных железобетонных поясов с утеплением.

Перекрытия
- Цокольное перекрытие и перекрытие 1-го этажа: железобетонные плиты заводского изготовления.
- Потолочное перекрытие 2–го этажа дома выполнено из деревянных балок камерной сушки.
- Утепление потолочного перекрытия 2-го этажа дома.
- Устройство паро-гидроизоляционных мембран.
- Потолки 2-го этажа дома подшиваются рейкой.

Окна и входная дверь дома
- Устанавливаются Профиль КБЕ 5-камерный (70мм), стеклопакет 3-ой энергосберегающий, окна с отливом и наружной ламинацией (без москитных сеток, подоконников).
- Устанавливается утепленная стальная входная дверь с системой «терморазрыв» — Ferroni 13 см Isoterma МДФ/МДФ Винорит.

Лестница
- Устанавливается временная межэтажная лестница из хвойных пород дерева.
- Устанавливается лестница на чердак. * Стоимость чердачной лестницы не входит в стандартную комплектацию и рассчитывается отдельно.

Кровельная система
- Усиленная стропильная система из обрезной доски.
- Контробрешетка. Обрешетка.
- Кровля – гибкая черепица «Технониколь» или металлочерепица («Дельта», «Дёркен», «Вилпе» и др.). Цвет — в ассортименте.
- Гидроизоляция кровли.
- Устройство кровельных вентиляционных выходов, с монтажом вентиляционного короба из санузла, кухни и котельной.

Терраса дома (при наличии)
- Монолитный ростверк с послойно утрамбованной песчаной подушкой с устройством железобетонных свай.
- Силовой каркас.
- Кровля террасы – гибкая черепица «Технониколь» или металлочерепица («Дельта», «Дёркен», «Вилпе»). Цвет — в ассортименте. * Стоимость террасы не входит в стандартную комплектацию и рассчитывается отдельно.

Балкон дома (при наличии)
- Силовой каркас, лаги пола, покрытие пола.
- * Стоимость балкона не входит в стандартную комплектацию и рассчитывается отдельно.

Сопровождение строительства
- Доставка материалов;
- Проживание рабочих;
- Организация труда;
- Организация биотуалета;
- Все расходные материалы;
- Строительно-монтажные работы;
- Складские расходы;
- Контроль над выполнением работ;
- Фото и видео отчеты о строительстве объекта;
- Авторский надзор архитектора;
- Шестиуровневый контроль специалистами Технадзора, службы контроля качества;
- Вывоз мусора.

Проектирование
- Эскизное решение
- Архитектурный проект
- Конструктивные решения
- Инженерные решения

Фундамент дома
- Геодезические работы. Разбивка осей и диагоналей дома с привязкой к границам участка.
- Выемка грунта. Бурение свай диаметром 300мм. Устройство свай (Арматура 8 AIII, Арматура 12 AIII, Бетон БСТ В22,5 (М300) F200 W8). Или устройство забивных свай.
- Отсыпка песка (песок технологический). Щебёночная подготовка (щебень фракции 20-40).
- Армирование фундамента (Арматура 8 AIII, Арматура 14 AIII).
- Бетонирование Фундамента (Бетон БСТ В22,5 (М300) F200 W8).
- Монтаж опалубки (доска обрезная 150х50).
- Гидроизоляция фундамента.
- Утепление фундамента.
- Устройство вентиляционных каналов.
- Монтаж закладных гильз для ввода инженерных коммуникаций (вода, канализация, электричество).

Стены и перегородки дома
- Наружные несущие стены выполнены: из газобетонных блоков, пеноблоков, керамзитоблоков, керамических блоков, кирпича.
- Внутренние несущие стены выполнены: из газобетонных блоков, пеноблоков, керамзитоблоков, керамических блоков, кирпича.
- Кирпичная кладка полнотелого кирпича над фундаментом. Утепление 100 мм ( 2 слоя по 50 мм).
- Облицовка фасада керамическим облицовочным кирпичом (может быть выполнена фасадной штукатуркой или другими облицовочными материалами).
- Монолитный пояс, Арматура 8 AIII, Арматура 12 AIII, Бетон БСТ В22,5 (М300) F200 W8).
- Бетонирование монолитных участков.
- Кладка перегородок.
- Кирпичная кладка полнотелого кирпича опирания перемычек. Монтаж перемычек над оконными и дверными проемами.
- Устройство межэтажных монолитных железобетонных поясов с утеплением.

Перекрытия
- Цокольное перекрытие и перекрытие 1-го этажа: железобетонные плиты заводского изготовления.
- Потолочное перекрытие 2–го этажа дома выполнено из деревянных балок камерной сушки.
- Утепление потолочного перекрытия 2-го этажа дома.
- Устройство паро-гидроизоляционных мембран.
- Потолки 2-го этажа дома подшиваются рейкой.

Окна и входная дверь дома
- Устанавливаются Профиль КБЕ 5-камерный (70мм), стеклопакет 3-ой энергосберегающий, окна с отливом и наружной ламинацией (без москитных сеток, подоконников).
- Устанавливается утепленная стальная входная дверь с системой «терморазрыв» — Ferroni 13 см Isoterma МДФ/МДФ Винорит.

Лестница
- Устанавливается временная межэтажная лестница из хвойных пород дерева.
- Устанавливается лестница на чердак. * Стоимость чердачной лестницы не входит в стандартную комплектацию и рассчитывается отдельно.

Кровельная система
- Усиленная стропильная система из обрезной доски.
- Контробрешетка. Обрешетка.
- Кровля – гибкая черепица «Технониколь» или металлочерепица («Дельта», «Дёркен», «Вилпе» и др.). Цвет — в ассортименте.
- Гидроизоляция кровли.
- Устройство кровельных вентиляционных выходов, с монтажом вентиляционного короба из санузла, кухни и котельной.

Электроснабжение
- Монтаж электропроводки.
- Прокладка кабеля, установка стаканов, подрозетников, коробок, автоматов, щитков.
- Монтаж слаботочки, телевизоры, интернет.

Скважина
- Бурение скважины.
- Обустройство скважины с частотным блоком управления скважинного насоса с устройством утепления трассы с греющим кабелем.

Внутренняя отделка
- Штукатурка стен и откосов. Цементно-песчаная.

Водоотведение
- Устройство водоотведения (Ёмкость септик 12м3 + аварийный переливной дренажный колодец с обратным клапаном).

Отопление, Гвс, Хвс
- Установка и обвязка газового котла фирмы Baxi.
- Монтаж дымохода.
- Установка расширительного бака.
- Монтаж насосной группы.
- Установка и подключение радиаторов отопления.
- Монтаж трубы отопления.
- Установка и обвязка коллектора.
- Монтаж теплого пола.
- Монтаж трубы хгвс.
- Бурение отверстий в стенах.
- Материалы и комплектующие фирмы STOUT.

Терраса дома (при наличии)
- Монолитный ростверк с послойно утрамбованной песчаной подушкой с устройством железобетонных свай.
- Силовой каркас.
- Кровля террасы – гибкая черепица «Технониколь» или металлочерепица («Дельта», «Дёркен», «Вилпе»). Цвет — в ассортименте. * Стоимость террасы не входит в стандартную комплектацию и рассчитывается отдельно.

Балкон дома (при наличии)
- Силовой каркас, лаги пола, покрытие пола.
- * Стоимость балкона не входит в стандартную комплектацию и рассчитывается отдельно.

Стяжка пола
- Монтаж (цемент М400, энергофлекс).

Сопровождение строительства
- Доставка материалов;
- Проживание рабочих;
- Организация труда;
- Организация биотуалета;
- Все расходные материалы;
- Строительно-монтажные работы;
- Складские расходы;
- Контроль над выполнением работ;
- Фото и видео отчеты о строительстве объекта;
- Авторский надзор архитектора;
- Шестиуровневый контроль специалистами Технадзора, службы контроля качества;
- Вывоз мусора.

Подготовительный этап
- Подготовка документации
- Выбор проекта дома
- Индивидуальное проектирование:
— эскизное решение;
— архитектурный проект;
— конструктивные решения;
— инженерные решения.

Фундамент. Закладка фундамента, террасы, крыльца дома
- Геодезические работы. Разбивка осей и диагоналей дома с привязкой к границам участка.
- Выемка грунта. Бурение свай диаметром 300мм. Устройство свай (Арматура 8 AIII, Арматура 12 AIII, Бетон БСТ В22,5 (М300) F200 W8). Или устройство забивных свай.
- Отсыпка песка (песок технологический). Щебёночная подготовка (щебень фракции 20-40).
- Армирование фундамента (Арматура 8 AIII, Арматура 14 AIII).
- Бетонирование Фундамента (Бетон БСТ В22,5 (М300) F200 W8).
- Геодезические работы. Разбивка осей и диагоналей дома с привязкой к границам участка.
- Геодезические работы. Разбивка осей и диагоналей дома с привязкой к границам участка.
- Монтаж опалубки (доска обрезная 150х50).
- Гидроизоляция фундамента.
- Утепление фундамента.
- Устройство вентиляционных каналов.
- Монтаж закладных гильз для ввода инженерных коммуникаций (вода, канализация, электричество).

Стены и перегородки дома
- Наружные несущие стены выполнены: из газобетонных блоков, пеноблоков, керамзитоблоков, керамических блоков, кирпича.
- Внутренние несущие стены выполнены: из газобетонных блоков, пеноблоков, керамзитоблоков, керамических блоков, кирпича.
- Кирпичная кладка полнотелого кирпича над фундаментом. Утепление 100 мм (2 слоя по 50 мм).
- Облицовка фасада керамическим облицовочным кирпичом (может быть выполнена фасадной штукатуркой или другими облицовочными материалами).
- Монолитный пояс, Арматура 8 AIII, Арматура 12 AIII, Бетон БСТ В22,5 (М300) F200 W8).
- Бетонирование монолитных участков.
- Кладка перегородок.
- Кирпичная кладка полнотелого кирпича опирания перемычек. Монтаж перемычек над оконными и дверными проемами.
- Устройство межэтажных монолитных железобетонных поясов с утеплением.
Перекрытия
- Цокольное перекрытие и перекрытие 1-го этажа: железобетонные плиты заводского изготовления.
- Потолочное перекрытие 2–го этажа дома выполнено из деревянных балок камерной сушки.
- Утепление потолочного перекрытия 2-го этажа дома.
- Устройство паро-гидроизоляционных мембран.
- Потолки 2-го этажа дома подшиваются рейкой.
Окна и входная дверь дома
- Устанавливаются Профиль КБЕ 5-камерный (70мм), стеклопакет 3-ой энергосберегающий, окна с отливом и наружной ламинацией.
- Устанавливается утепленная стальная входная дверь с системой «терморазрыв» — Ferroni 13 см Isoterma МДФ/МДФ Винорит.
Лестница
- Устройство монолитной лестницы (Арматура 10 AIII, Арматура 12 AIII, Бетон М200, Фанера фсф 8мм, Саморезы 70х3,5, Бетононасос стационарный).
- Устанавливается лестница на чердак.

Крыша
- Усиленная стропильная система из обрезной доски.
- Контробрешетка. Обрешетка.
- Кровля – гибкая черепица «Технониколь» или металлочерепица («Дельта», «Дёркен», «Вилпе» и др.). Цвет — в ассортименте.
- Гидроизоляция кровли.
- Устройство кровельных вентиляционных выходов, с монтажом вентиляционного короба из санузла, кухни и котельной.

Электроснабжение
- Монтаж электропроводки.
- Прокладка кабеля, установка стаканов, подрозетников, коробок, автоматов, щитков.
- Монтаж слаботочки, телевизоры, интернет.
Скважина
- Бурение скважины.
- Обустройство скважины с частотным блоком управления скважинного насоса с устройством утепления трассы с греющим кабелем.
Водоотведение
- Устройство водоотведения (Ёмкость септик 12м3 + аварийный переливной дренажный колодец с обратным клапаном).
Отопление, Гвс, Хвс
- Установка и обвязка газового котла фирмы Baxi.
- Монтаж дымохода.
- Установка расширительного бака.
- Монтаж насосной группы.
- Установка и подключение радиаторов отопления.
- Монтаж трубы отопления.
- Установка и обвязка коллектора.
- Монтаж теплого пола.
- Монтаж трубы хгвс.
- Бурение отверстий в стенах.
- Материалы и комплектующие фирмы STOUT.

Сопровождение поэтапного строительства дома
- Доставка материалов;
- Проживание рабочих;
- Организация труда;
- Организация биотуалета;
- Все расходные материалы;
- Строительно-монтажные работы;
- Складские расходы;
- Контроль над выполнением работ;
- Фото и видео отчеты о строительстве объекта;
- Авторский надзор архитектора;
- Шестиуровневый контроль специалистами Технадзора, службы контроля качества;
- Приемка службой Технадзора;
- Вывоз мусора.
Посмотрите другие проекты
Площадь:
270 м2
Размеры:
20 x 14 м
Этажей:
2
Комнат:
5
Санузлов:
4
Гараж:
0
Стоимость строительства:
от 6 775 301 ₽
Площадь:
320 м2
Размеры:
19 x 14 м
Этажей:
2
Комнат:
3
Санузлов:
3
Гараж:
1
Стоимость строительства:
от 8 150 203 ₽
Площадь:
180 м2
Размеры:
16 x 11 м
Этажей:
2
Комнат:
4
Санузлов:
2
Гараж:
2
Стоимость строительства:
от 5 811 606 ₽
Недавно просмотренные проекты
Мы всегда высоко ценим отзывы и мнения наших клиентов
Все наши отзывы являются полностью достоверными и отражают реальный опыт наших клиентов

★★★★★
23 октября 2022Read More
Добрый день, хотелось бы оставить отзыв о компании «Лучший город». Вы сделали невозможное возможным, реализовав все наши желания и предоставив нам качественный и надежный дом (выбрали кирпичный). Все сроки были соблюдены. Дети в восторге от детской площадки, а значит и мы – родители, тоже. Еще раз спасибо!

★★★★★
21 мая 2022Read More
Не нарадуемся нашему новому дому! Спасибо, что помогли осуществить мечту о собственном жилье. На каждом этапе строительства со мной всегда были на связи и отвечали на все интересующие меня вопросы. Все выполнено аккуратно и на высоком уровне. Теперь будем рекомендовать вас всем нашим знакомым.

★★★★★
14 октября 2021Read More
Мы хотели иметь свой собственный загородный дом, чтобы было место, где можно отдохнуть с семьей и спрятаться от городской суеты. Долго искали нужных нам подрядчиков, и друзья посоветовали данную строительную компанию. Хочу сказать, что мы с мужем ни разу не пожалели об этом выборе. Во-первых, дом нам сдали в срок, во-вторых, были использованы качественные материалы, для нас это было очень важно. Отдельное спасибо за внимательное отношение к нашим пожеланиям.

★★★★★
19 мая 2021Read More
Хочу поделиться своим опытом работы с компанией "Лучший город". Я был приятно удивлен профессионализмом и ответственным отношением к работе со стороны всех работников. Они помогли мне с выбором оптимального проекта и качественно его реализовали. Весь процесс строительства был четко организован, все поэтапные работы были выполнены по обговоренному регламенту, и я всегда был в курсе происходящего благодаря оперативной связи с менеджером проекта. Результат превзошел все мои ожидания - дом выглядит просто потрясающе!

★★★★★
19 мая 2021Read More
Здравствуйте! Заказывали у вас строительство каркасного дома и остались довольны выполненной работой. Качество материалов на высшем уровне, в принципе, как и ожидали. Отдельное спасибо архитектору, за помощь в разработке дизайна, так как сами еще колебались при выборе того, что мы хотим получить в конечном итоге. Но по окончанию работы, мы поняли, что сделали правильный выбор и хорошо, что прислушались к вашим советам. Рекомендую данную компанию, кто хочет иметь свой дом.

★★★★★
19 мая 2021Read More
Изучал много отзывов разных компаний и мой выбор остановился на компании «Лучший город». Тут мне помогли определиться с выбором строительных материалов для дома под мои запросы и финансовую возможность. Несколько раз приезжал на участок во время строительства, чтобы самому посмотреть и убедиться в качестве работы. Могу отметить, что на стройке всегда был порядок, вся строительная бригада были трезвыми и никто не сидел без дела, мужики работали как надо и дом сдали как положено в срок. Очень доволен, спасибо всем.
Previous
Next
В большинстве случаев, даже если у вас уже есть смета, мы можем предложить более выгодные условия, не ухудшая качество
Что мы делаем для достижения этого результата?
- Оптимизируем процесс строительства и использования инновационных технологий, которые позволяют сократить время и затраты на строительство.;
- Мы имеем длительные отношения с поставщиками материалов и оборудования, что позволяет нам получать оптимальные цены на все необходимое для строительства.;
- Выбираем оптимальные материалы, чтобы максимально сократить расходы и снизить стоимость строительства, не ущемляя при этом качество работы;
- Постоянно следим за изменением цен на материалы и стараемся закупать их в нужный момент, чтобы избежать роста стоимости.
Предоставьте нам готовую смету на строительство, и мы покажем вам, как можно сэкономить.
Наш инженер-сметчик произведет расчет по стоимости услуг и материалов по оптовым ценам, что позволит снизить общую стоимость строительства.
Нажимая на кнопку вы соглашаетесь с условиями Политики конфиденциальности
Мы на карте

Адрес офиса
г. Краснодар, ул. Дзержинского 8/1
Наши контакты
Без выходных: 9:00 до 20:00
Пишите в мессенджер, отвечаем мгновенно
Электронная почта
До встречи

В офисе

На участке
Добавьте сайт в избранное
Обратившись к нам, вы получите лучшую цену на строительство дома
И чтобы не потерять сайт, добавьте его в закладки
Либо нажмите сочетание клавиш CTRL + D










